"Agora" proiektua hautatu dute Laudio Antzokia eraikitzeko

Aitor Aspuru Saez 2019ko irailaren 13a

Epaimahai teknikoaren aburuz Javier de las Heras Solé arkitekto kataluniarraren proiektua da onena. 2021erako aurreikusi dituzte obrak.

Laudioko Udal Gobernu taldeak jakinarazi du "Agora" proiektua hautatu dutela Laudio Antzokia gauzatzeko. 6 lagunek osatu dute epaimahai teknikoa -4 arkitekto, udal aparejadorea eta soziokultura animatzailea- eta aho batez babestu dute Javier de las Heras Soléren lana. Orain tokiko erakundeak ekingo dio berarekin negoziatzeari, ideia egikaritzeko.

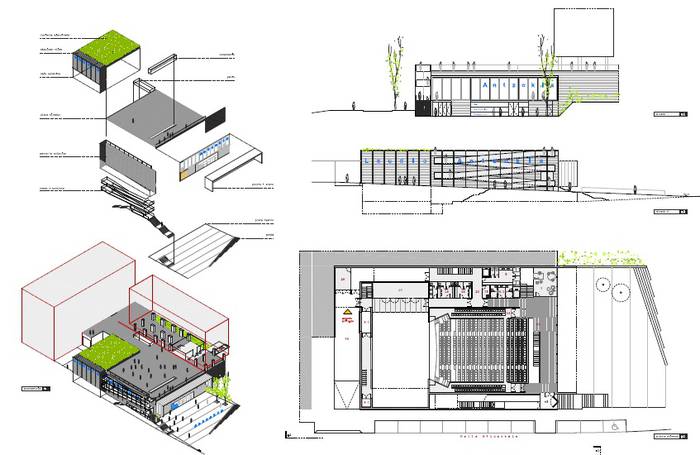
Arkitekto kataluniarraren egitasmoak 438 eserleku izango ditu, baina erdiguneko aulkiak kendu eta batu daitezkeenez, 700 plaza baino gehiago lor ditzake eraikinak.

Ander Añibarro alkateak goraipatu duenez, ezaugarri tekniko guztiak bete ez ezik, proiektuak konpondu du bertan egon zitekeen arazorik handiena: alboko etxebizitzekin batzea. Horrela, Antzokiaren estalkia plaza izango da inguruko biztanleentzat, hurbilen dauden etxebizitzen altuera berean egongo baita. Gainera, arrapala egongo da nahi duenak plaza hori erabili dezan. Soinua egokia izan dadin, Musikeneko emanaldi aretoa diseinatu duen Gasteizko enpresak parte hartu du proiektuan.

Nabarmendu dituzten beste alde batzuk dira Antzokiak ez duela puntu beltzik sortuko Latiorron, egurra eta kristala erabiliko direla, beirazko fatxada baliatu daitekeela proiekzioak egiteko eta kamerinoak, biltegia eta bulegoa izango dituela. Guztira, 3 solairutan banatutako 1.793 metro koadro erabilgarri sortuko ditu eraikinak, eta taberna izango du auzokideentzat.

5 milioi euro
Alkatearen hitzetan, Antzokia eraiki eta hornitzeko 5 milioi euro inguru beharko dira. 2020an proiektua erredaktatzeko asmoa dute, eta EAJ eta PSE-EEren nahia da 2021ean hastea obrak. Hala ere, Añibarrok azaldu du izapide oso luzeak egin beharko direla, prozesu garestia eta zaila baita. Horrez gain, Juanje Merchan sozialistak adierazi du hautaketa honekin zor historikoa konpondu nahi dutela laudioarrekin.

LAGUN AGURGARRIA:

Bisitatzen ari zaren webgune hau euskararen normalizazioaren alde Aiaraldea Ekintzen Faktoria proiektu berrituak garatzen duen tresnetako bat da.

Euskarazko hedabideak sortu eta eskualdean zabaltzeko gogor lan egiten dugu egunero-egunero langile zein boluntario talde handi batek.

Hedabide herritarra da gurea, eskualdeko herritarren ekarpen ekonomikoari esker bizi dena, jasotzen ditugun diru-laguntzak eta publizitatea ez baitira nahikoa proiektuak aurrera egin dezan.

Herritarra, anitza eta independentea den kazetaritza egiten dugu, eta egiten jarraitu nahi dugu. Baina horretarako, zure ekarpena ere ezinbestekoa zaigu. Hori dela eta, gure edukien hartzaile zaren horri eskatu nahi dizugu Aiaraldea Ekintzen Faktoriako bazkide egiteko, zure sustengua emateko, lanean jarraitu ahal izateko.

Bazkideek onura eta abantaila ugari dituzte gainera, beheko botoian klik eginda topatuko duzu informazio hori guztia.

Faktoria izan, egin zaitez bazkide.

Aiaraldea Hedabideko lantaldea.


Izan bazkide